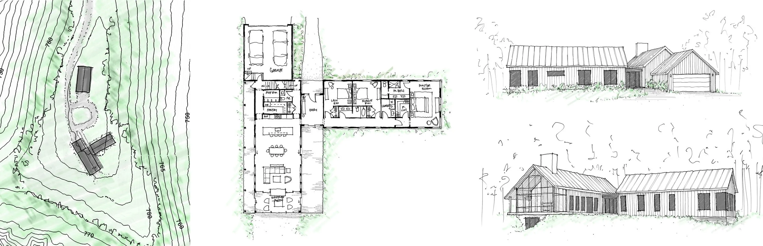
HILLTOP HOMESTEAD Location Nashville, INDate 2020Status Built View fullsize View fullsize 1 View fullsize 1 View fullsize 1 View fullsize View fullsize View fullsize View fullsize View fullsize View fullsize View fullsize View fullsize View fullsize View fullsize 1 1 View fullsize View fullsize View fullsize 1 View fullsize View fullsize 1 1 View fullsize 1 View fullsize 1 View fullsize 1 View fullsize 1 View fullsize 1 View fullsize View fullsize View fullsize View fullsize 1 View fullsize 1 View fullsize 1 1 Photos Courtesy of Allison Steele