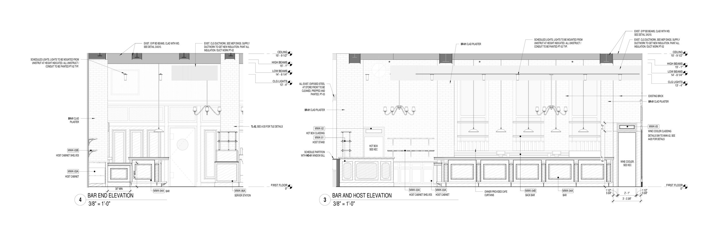
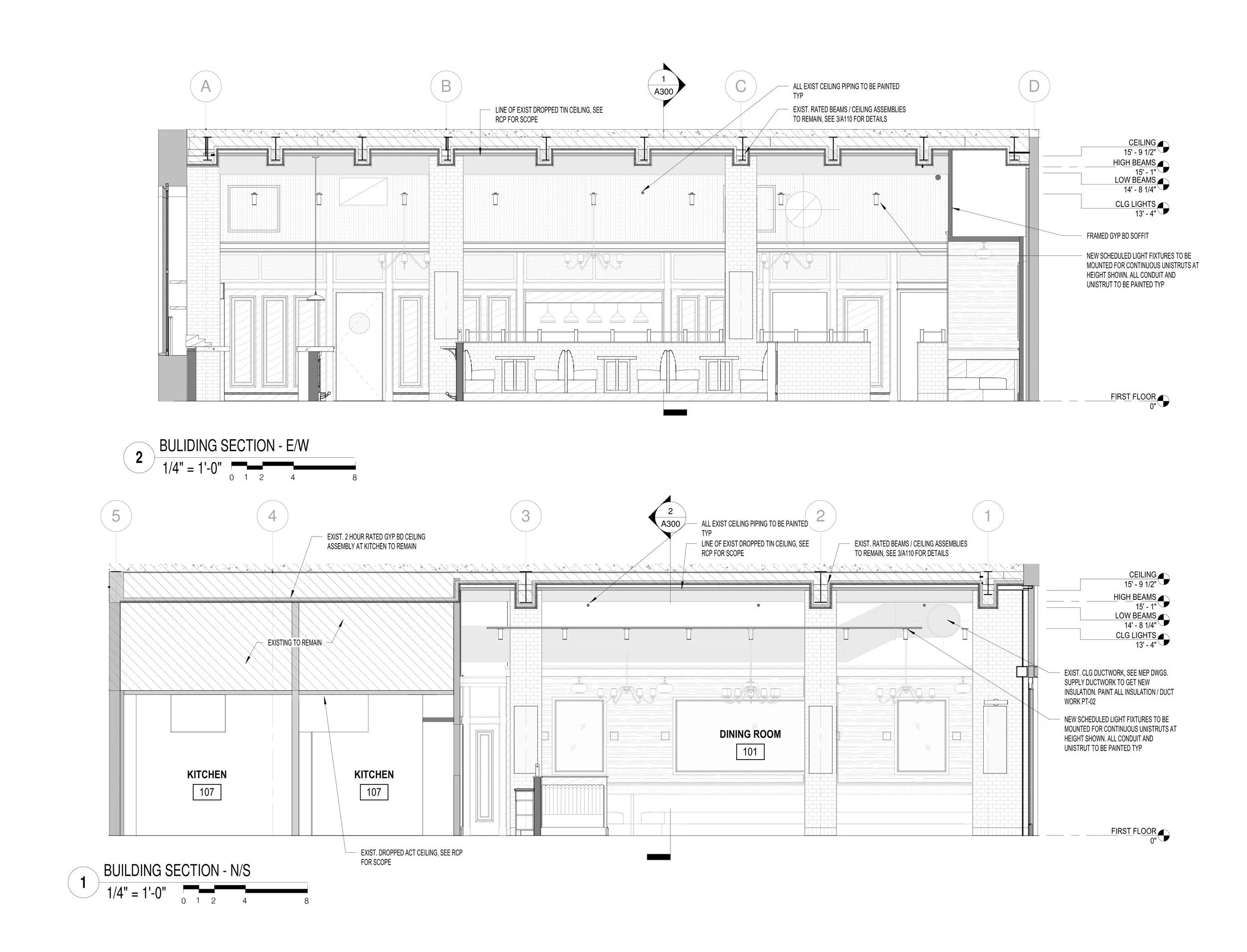
WEST LOOP ITALIAN Location Chicago, ILDate 2026Status Under Construction View fullsize View fullsize View fullsize View fullsize View fullsize View fullsize View fullsize View fullsize View fullsize View fullsize View fullsize