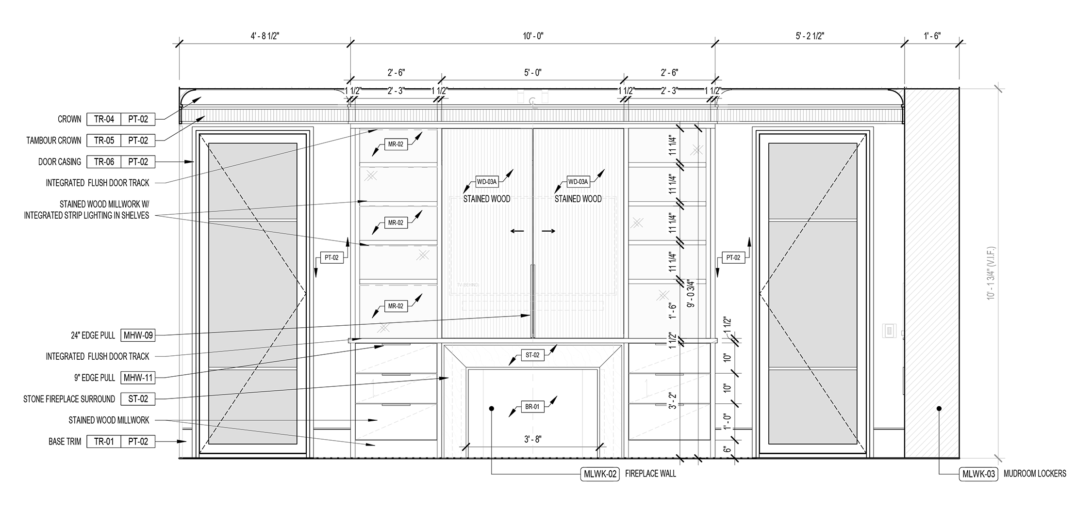
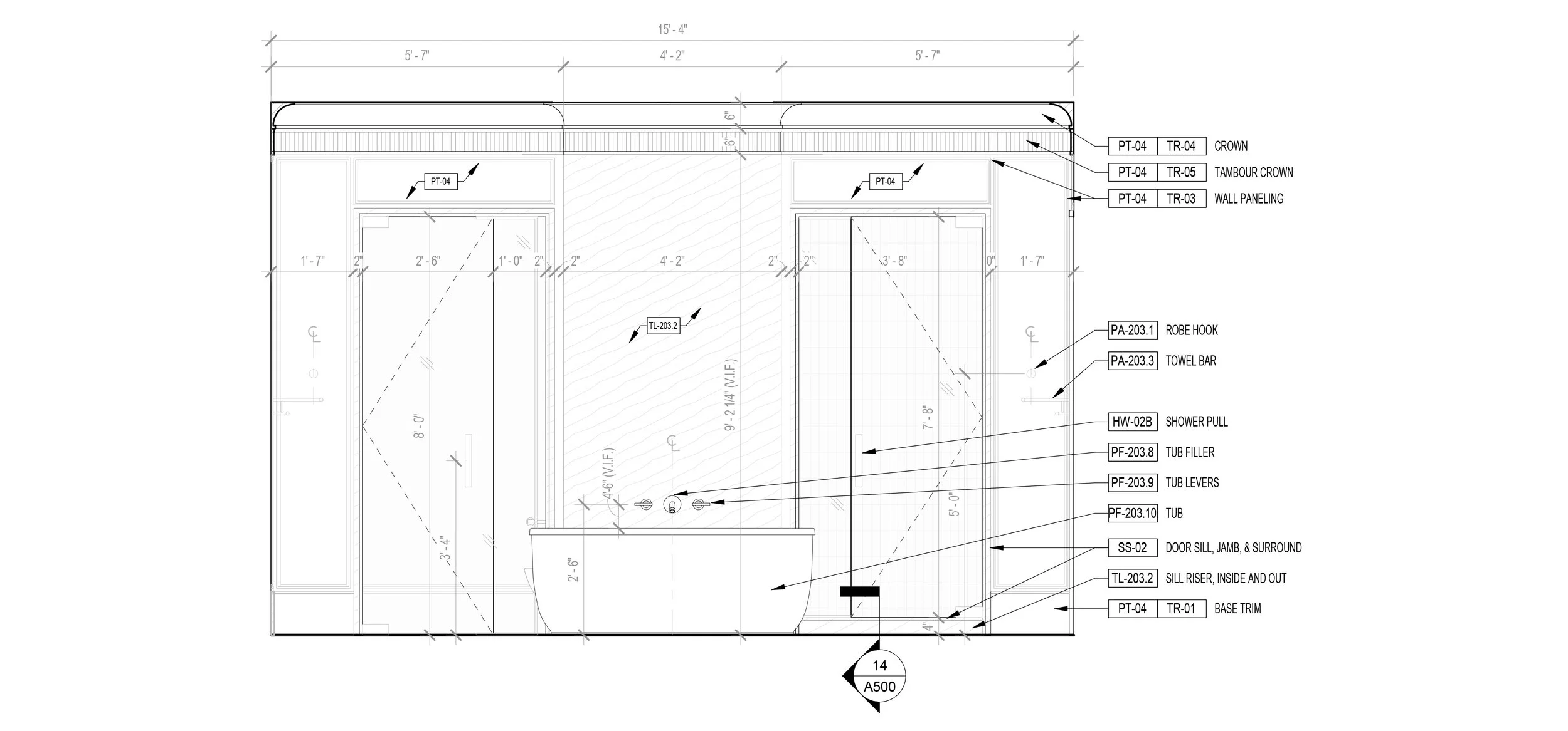
WICKER PARK RESIDENCE Location Chicago, ILDate 2026Status In Construction View fullsize View fullsize View fullsize View fullsize View fullsize View fullsize View fullsize View fullsize View fullsize View fullsize View fullsize View fullsize View fullsize View fullsize View fullsize